Nama Bradley Cooper dan Lady Gaga bersinar di pentas piala Oscar 2019 baru-baru ini. Pasangan ini mendapat sambutan meriah dari para penonton, lagi-lagi mereka berdua membawakan lagu berjudul “Shallow” dari filem yang mereka bintangi, “A Star is Born“.

Tak dapat dinafikan bahawa drama muzikal itu menjadi salah satu filem yang sangat berjaya di Hollywood. Selain kerana original soundtracknya yang hebat, ceritanya pun benar-benar inspiratif dan cukup terkesan.
Sebagai seorang aktor sekaligus penerbit, Bradley Cooper juga diramalkan mengutip kekayaan sejumlah US$ 100 juta atau setara RM400 Juta. Mengenai asetnya, dia juga tinggal di rumah yang cukup mewah. Ingin tahu bagaimana rumah mewah milik Bradley Cooper?
Bernilai RM 55 Juta

Harga rumahnya mencapai ratusan juta ringgit, manakan tidak, rumahnya betul-betul terletak di kota New York. Rumah itu ternyata sebuah town house yang harganya US$ 13.5 juta, atau setara dengan RM 55 Juta, tak jauh beza dengan harga rumah Dato Sri Aliff Syukri kan?
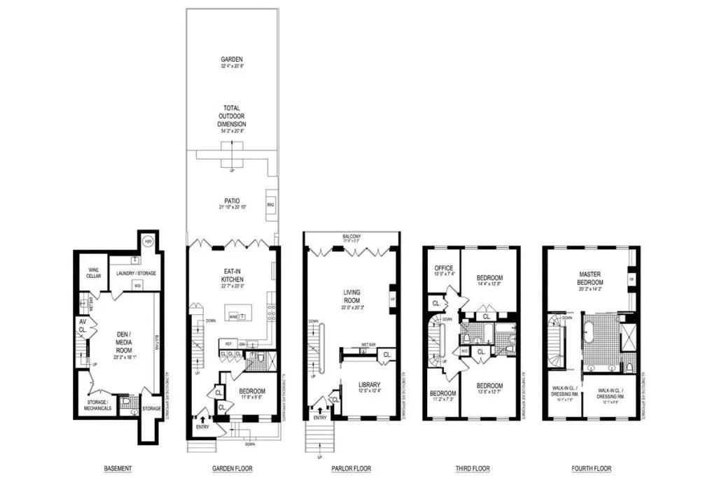
Luasnya mencapai 4000 kaki persegi, boleh dikatakan cukup luas lantaran Bradley Cooper tinggal dengan kekasihnya Irina Shayk dan anak gadisnya, Lea yang masih berumur satu tahun.

Difahamkan rumah itu mempunyai 4-6 buah bilik tidur dan 4 bilik mandi. Jika dilihat pada rekaan dalaman, rumah ini berkonsepkan klasik. Dinding eksteriornya adalah bata ekspos berwarna merah.


4 Tingkat Dan Dilengkapi Basement (Ruangan Bawah Tanah)
Rumah ini juga terdiri dari empat tingkat. Empat tingkat termasuk dengan basement atau ruang bawah tanah.
Gaya interiornya juga bertemakan klasik minimalis dan pastinya sangat tenang dipandang. Kombinasi dinding berwarna putih dan lantai kayu sememangnya tak pernah salah buat diaplikasikan di rumah moden mahupun klasik.
Ruang tamunya juga dilengkapi dengan perapian dengan material kayu. Terlihat pula hiasan dinding berupa lukisan yang berukuran besar.

Sofa berwarna kelabu muda juga membuat tema ruangan ini terlihat jadi lebih lembut.
Penampakan dapur rumah Bradley Cooper juga cukup teratur. Dinding, almari, dan raknya berwarna putih. Sementara itu, lantainya tetap dilapisi panel kayu yang terlihat kasar.

Unsur rustik justru terlihat kuat di bahagian dapur. Hal itu disebabkan kerana adanya banyak palang kayu yang ditempatkan di bahagian langit-langit.
Di samping dapur jelas ada ruang makan. Perabot di ruang makan seperti meja dan kerusi semua bertemakan kayu.

Berhampiran dengan meja makan juga terdapat sofa berwarna jingga dan sebuah meja kecil berbentuk bulat. Dari ruang makan terdapat akses menuju ke halaman belakang.

Klasik dan ringkas, mungkin dua hal ini yang menggambarkan suasana di master bedroom rumah Bradley Cooper. Dindingnya dipadankan dengan warna kelabu muda, lantainya menggunakan material kayu serta rekaan tempat tidurnya klasik menambah kesan mewah.


Tak cuma itu, permaidani serta sarung bantal dengan motif unik menambah kesan mewah dan mahal. Di bilik tersebut, terdapat pula sebuah bilik mandi dengan tab mandi warna putih. Lucunya bilik mandi itu lantainya juga menggunakan lantai lantai kayu dan terdapat permaidani etnik juga yang bermotif unik. Hairan juga kenapa lantainya kayu?

Ruang menonton TV di rumah ini juga bertemakan kayu. Dominasi kayu makin terlihat kental kerana adanya rak raksasa berwarna jingga.
Rak itu pun dimanfaatkan buat meletakkan TV, buku-buku, dan sebagainya. Sofanya juga berwarna jingga dan di depannya terdapat sebuah meja yang dipenuhi majalah.
Itulah penampakan rumah mewah Bradley Cooper yang bertemakan sepenuhnya klasik. Mungkin boleh dijadikan idea untuk rumah baru anda?

